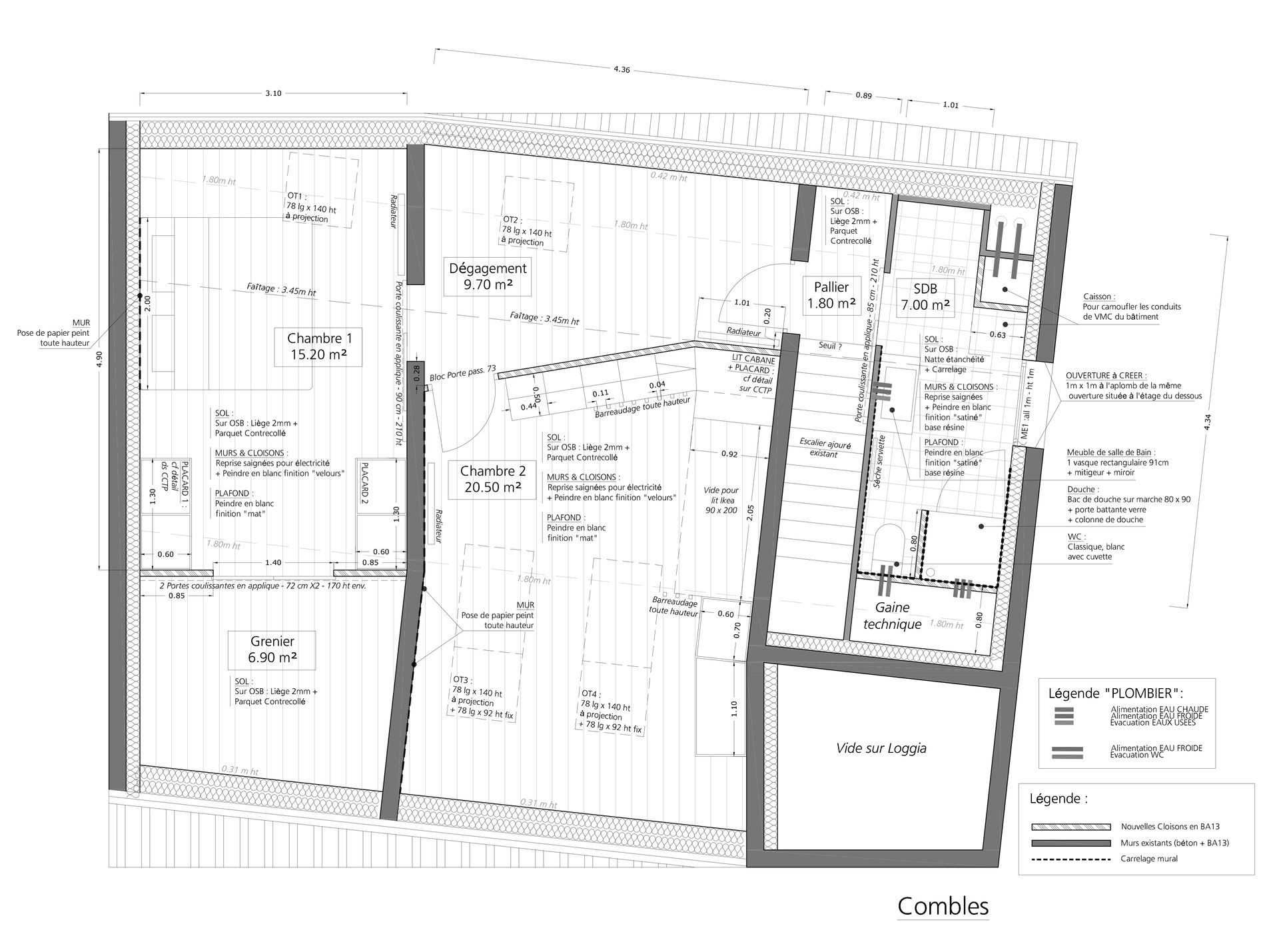
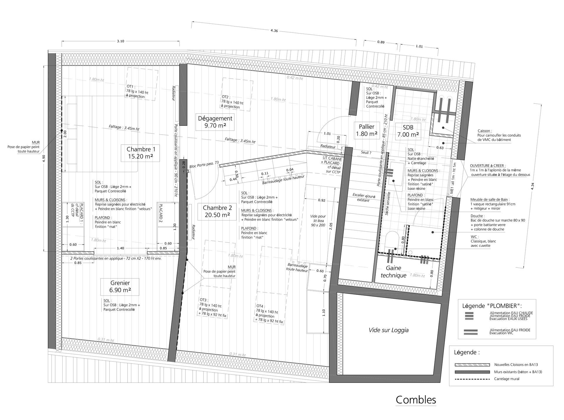
Aménagement des combles d'une maison de ville
Année : 2020 > 2021
Localisation : Environs de Lyon (69)
Maître d'Ouvrage : privé
Surface de plancher : 36 m² (au sol 63 m²)
Coût total des travaux : 55 000 € HT
Mission : Complète (conception => livraison du chantier)











