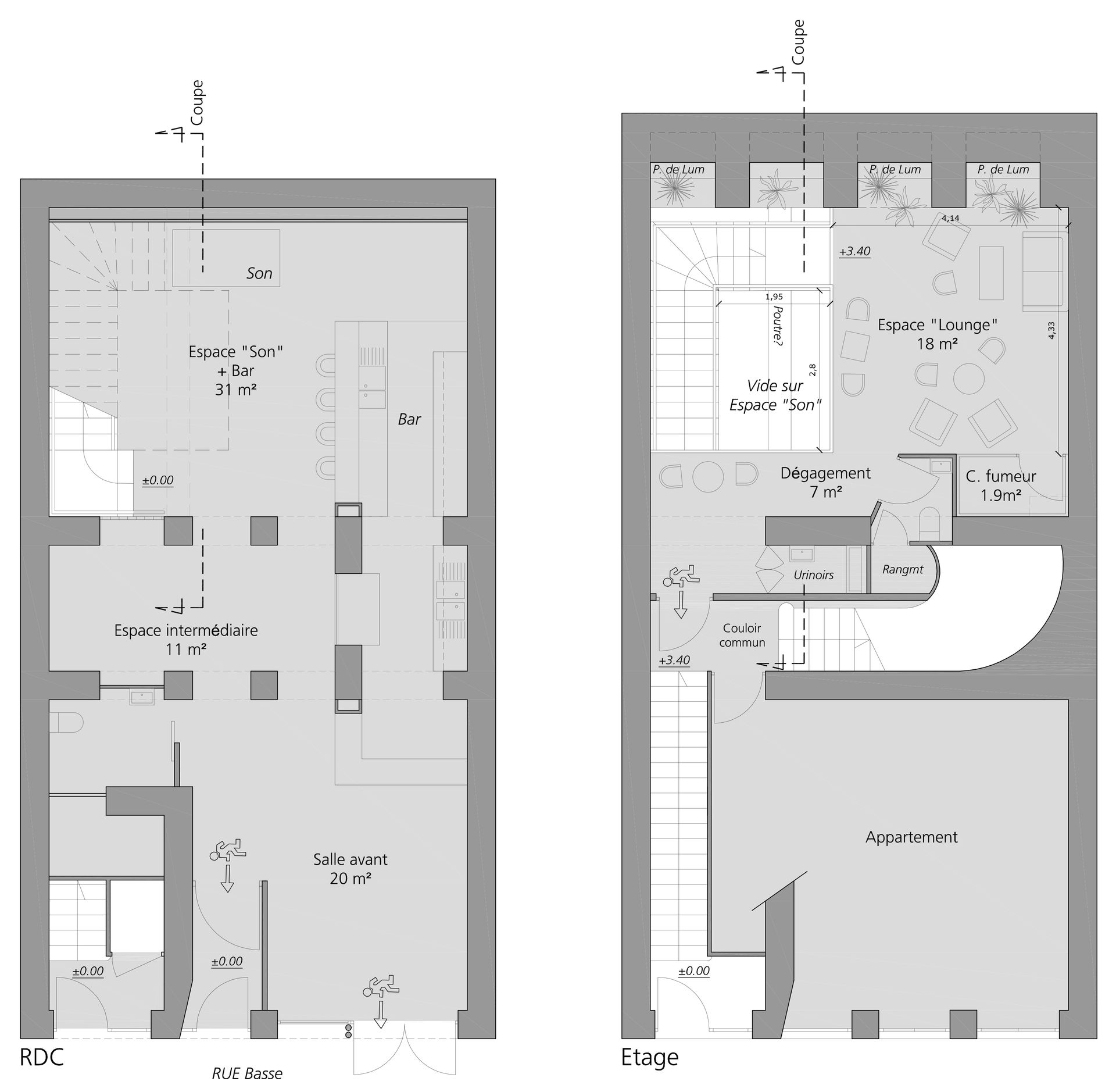
Extension d'un "bar/lieu culturel" par l'aménagement d'un appartement aveugle situé au dessus
Année : 2019
Localisation : Lyon (1er arrondissement)
Maître d'Ouvrage : Super 5
Surface : 125 m²
Mission : Conception



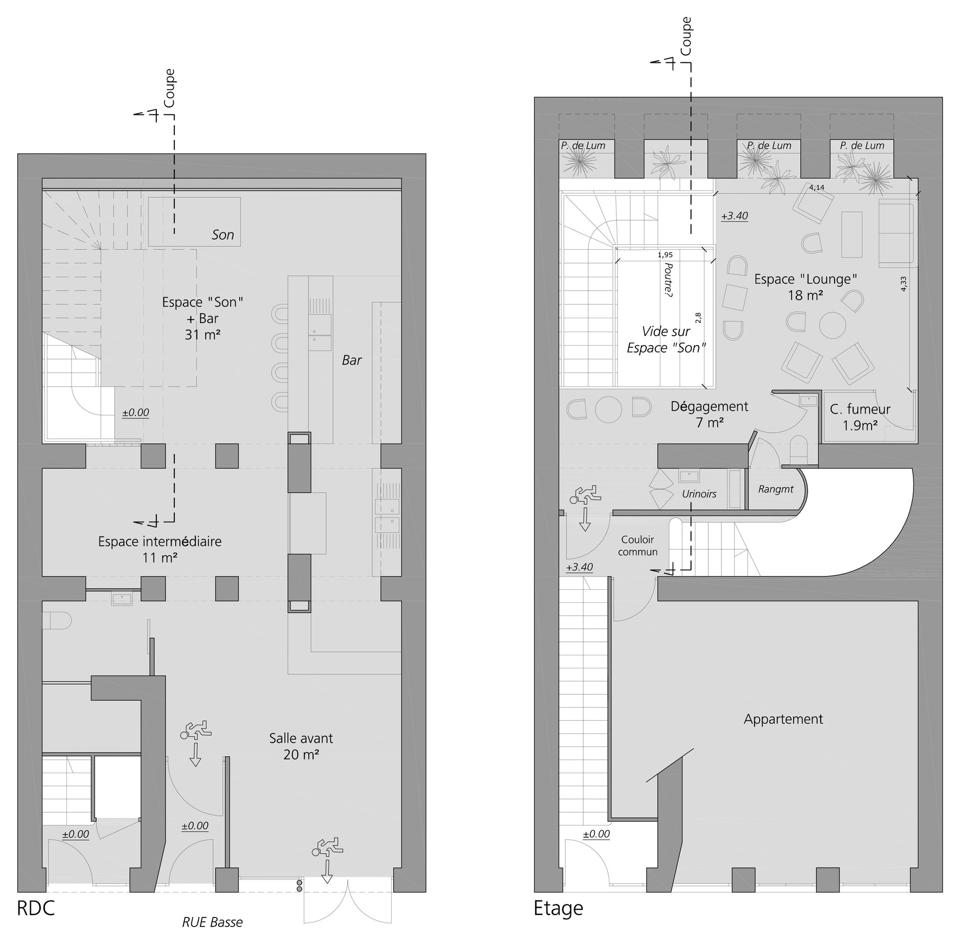
Extension d'un "bar/lieu culturel" par l'aménagement d'un appartement aveugle situé au dessus
Année : 2019
Localisation : Lyon (1er arrondissement)
Maître d'Ouvrage : Super 5
Surface : 125 m²
Mission : Conception


