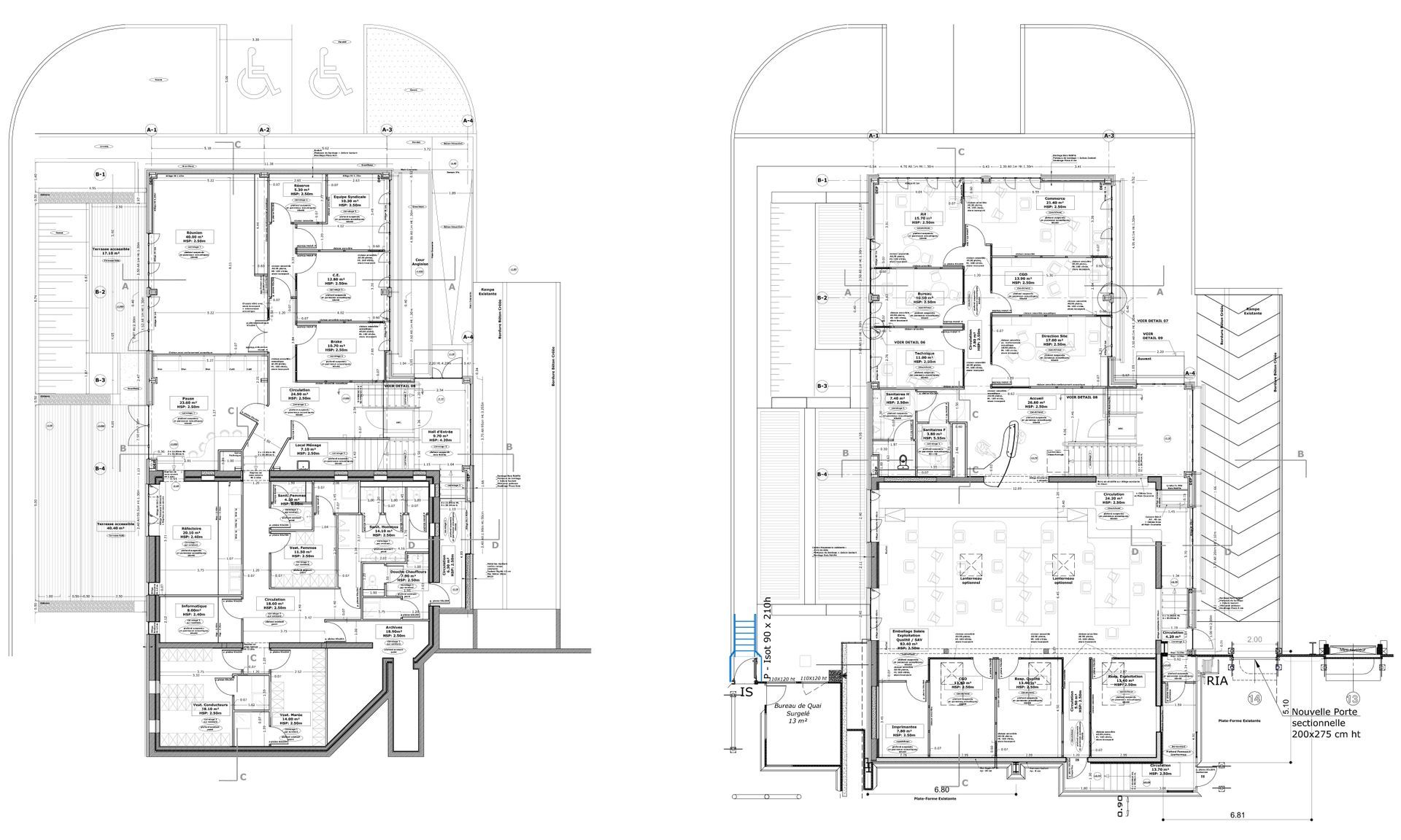
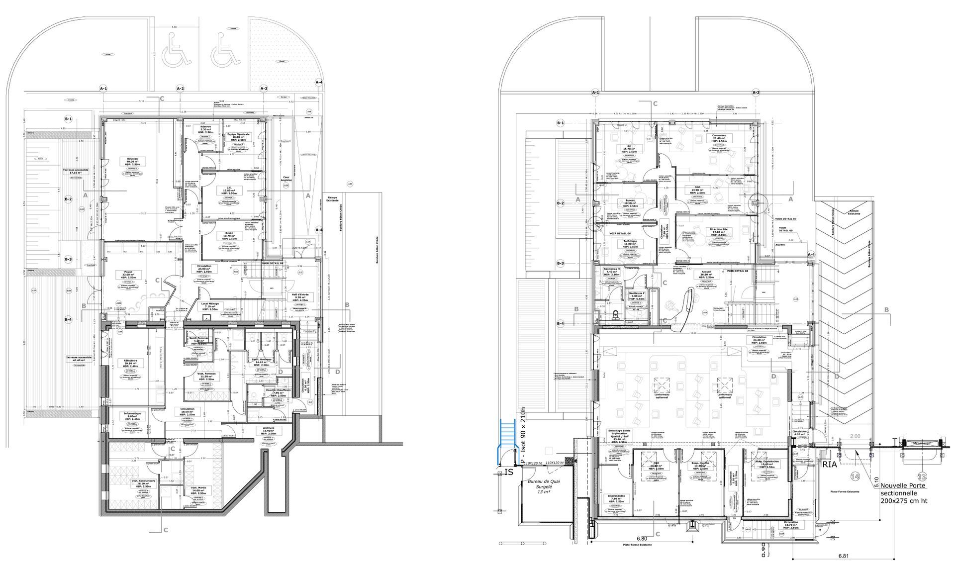
Réhabilitation & Extension de bureaux et locaux sociaux d'un bâtiment industriel
chez "Stéphane Aubey Architecte DPLG"
Année : 2015
Localisation : Niort (79)
Maître d'Ouvrage : Privé
Surface du projet : 750 m²
Coût des travaux : 750 000 € HT
Mission : Conception + Permis de Construire + plans PRO




