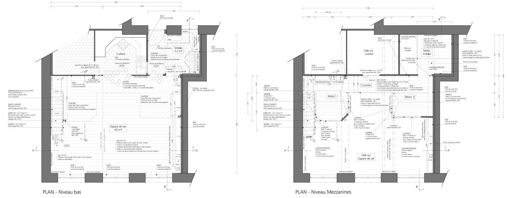
Rénovation de l'espace de vie
d'un appartement type "canut"
Année : 2019
Localisation : Lyon (4ème arrondissement)
Maître d'Ouvrage : privé
Surface : 68 m²
Coût des travaux : 83 000 € HT
Mission : Complète (conception => livraison du chantier)













Rénovation de l'espace de vie
d'un appartement type "canut"
Année : 2019
Localisation : Lyon (4ème arrondissement)
Maître d'Ouvrage : privé
Surface : 68 m²
Coût des travaux : 83 000 € HT
Mission : Complète (conception => livraison du chantier)












