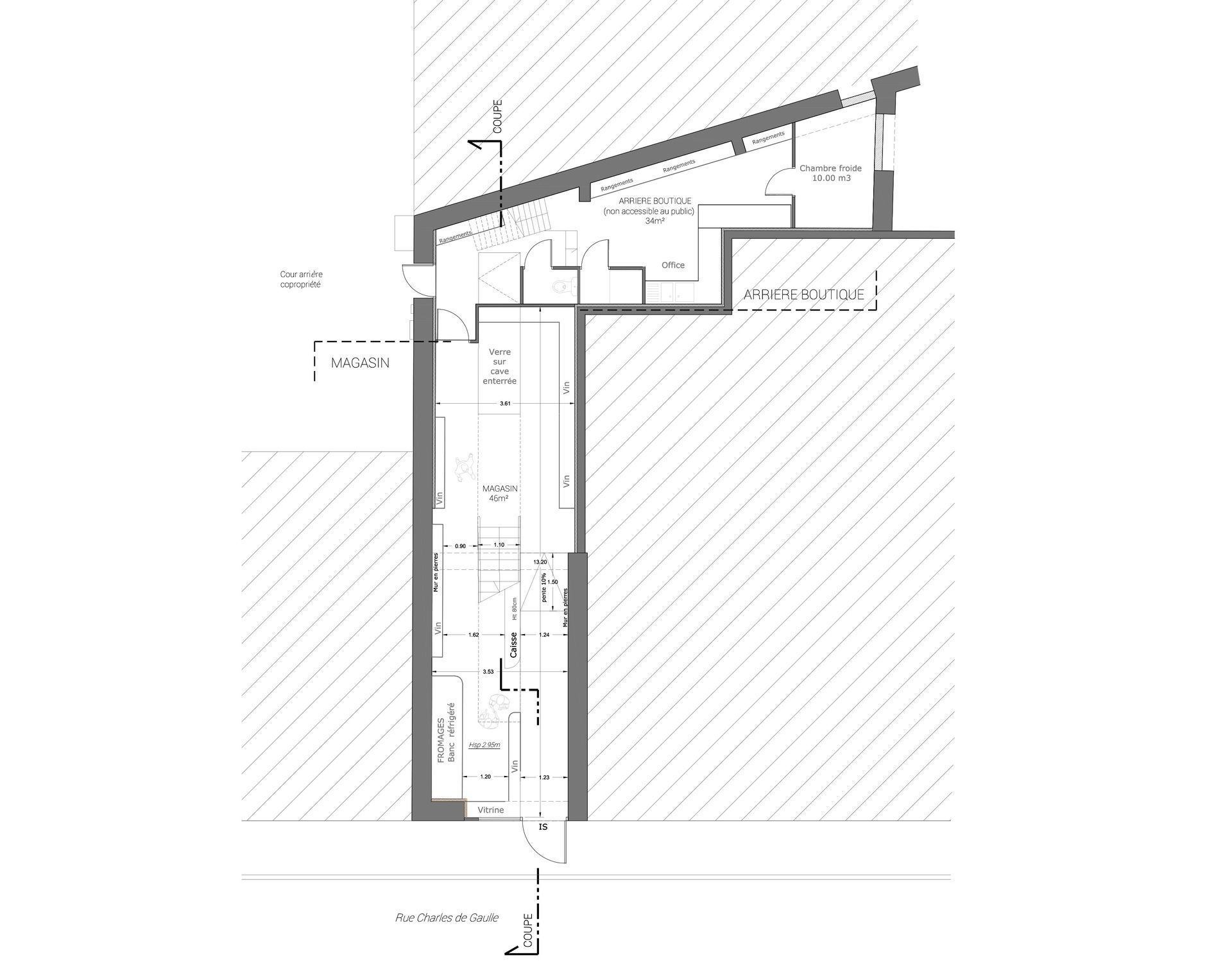
Transformation d'un garage automobile
en Fromagerie & Cave à vin
Année : 2021
Localisation : Coteaux du lyonnais (69)
Maître d'Ouvrage : Privé
Surface : 100 m²
Mission : Conception => Permis de Construire ERP









Transformation d'un garage automobile
en Fromagerie & Cave à vin
Année : 2021
Localisation : Coteaux du lyonnais (69)
Maître d'Ouvrage : Privé
Surface : 100 m²
Mission : Conception => Permis de Construire ERP








