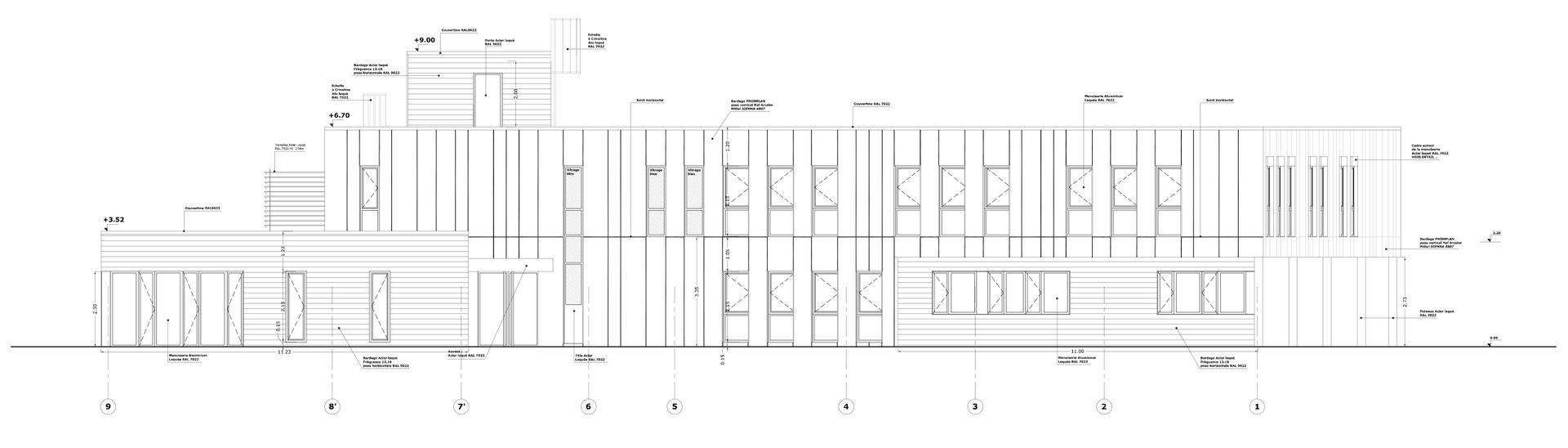
Construction d'un bâtiment de bureaux et de locaux sociaux pour un bâtiment de logistique
chez "Stéphane Aubey Architecte DPLG"
Année : 2016
Localisation : Nemours (77)
Maître d'Ouvrage : Privé
Surface du projet : 1 165 m²
Coût des travaux : 1 300 000 € HT
Mission : Conception + Permis de Construire + plans PRO






